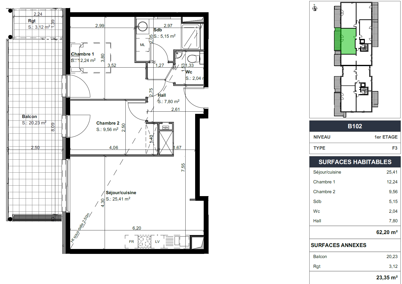
vente Appartement 3 pièces à Wintzenheim - REF B0102
vente Appartement
WINTZENHEIM (68920)
Descriptif du bien
Nombre d'étages du bâtiment : 3
Etage du bien : 1
ascenseur
terrasse
DERNIERS LOTS A SAISIR ! APPARTEMENT AU 1 ER ETAGE AVEC ASCENSEUR
Découvrez ce 3 pièces de 62 m2 situé au 1er étage d'une résidence de standing, offrant un cadre de vie agréable et lumineux.
Il se compose d’une entrée spacieuse, d’un séjour avec cuisine ouverte de 25 m2, de 2 chambres, d’une salle de bains avec douche, d’un WC séparé ainsi que de rangements.
La pièce de vie s’ouvre sur une belle terrasse de 21 m2, parfait pour profiter des beaux jours.
Résidence conforme aux dernières normes énergétiques.
Livraison : 2027Frais de notaire réduits (env. 2,5 %)
Plusieurs pack disponibles.
Garage ou place de parking disponible.
Pour plus d'informations, contactez Monsieur VOINSON Alexis O6 27 15 05 23
A propos du prix
Prix : 233 000 € (frais d'agence inclus)
Honoraires TTC : € (à la charge de l’acquéreur)
Frais de notaire (à la charge de l’acquéreur : ≈ 8% du prix pour de l’ancien et ≈ 2.5% du prix pour du neuf)
Biens similaires
de qualité